店舗・事務所
酒田市 豊里字堂脇 の売店舗
おすすめコメント
大きい敷地内に居宅と店舗がある売物件です。| 価格 | 2000万円 |
|---|---|
| 交通 | 酒田駅 車6分 |
| 所在地 | 山形県酒田市豊里字堂脇8 |
| 築年月 | 2001年3月(築25年) |
| 土地面積 | 2334.52㎡(706.19坪) |
| 階建/階 | 1階建/1階 |
| 用途地域 | 準工業 |
| 建物構造 | 木造 |
- エアコン
- 男女別トイレ
- 給湯
- 上水道
- 下水道
- 都市ガス
- プロパンガス
物件詳細情報
| 交通 | 酒田駅 車6分 |
|---|---|
| 所在地 | 山形県酒田市豊里字堂脇8 |
| 物件種目 | 売店舗 |
| 価格 | 2000万円 |
|---|
| 建物名・部屋番号 | - |
|---|---|
| 設備 | |
| 特記事項 | バス・トイレ別室 シャワー 給湯. |
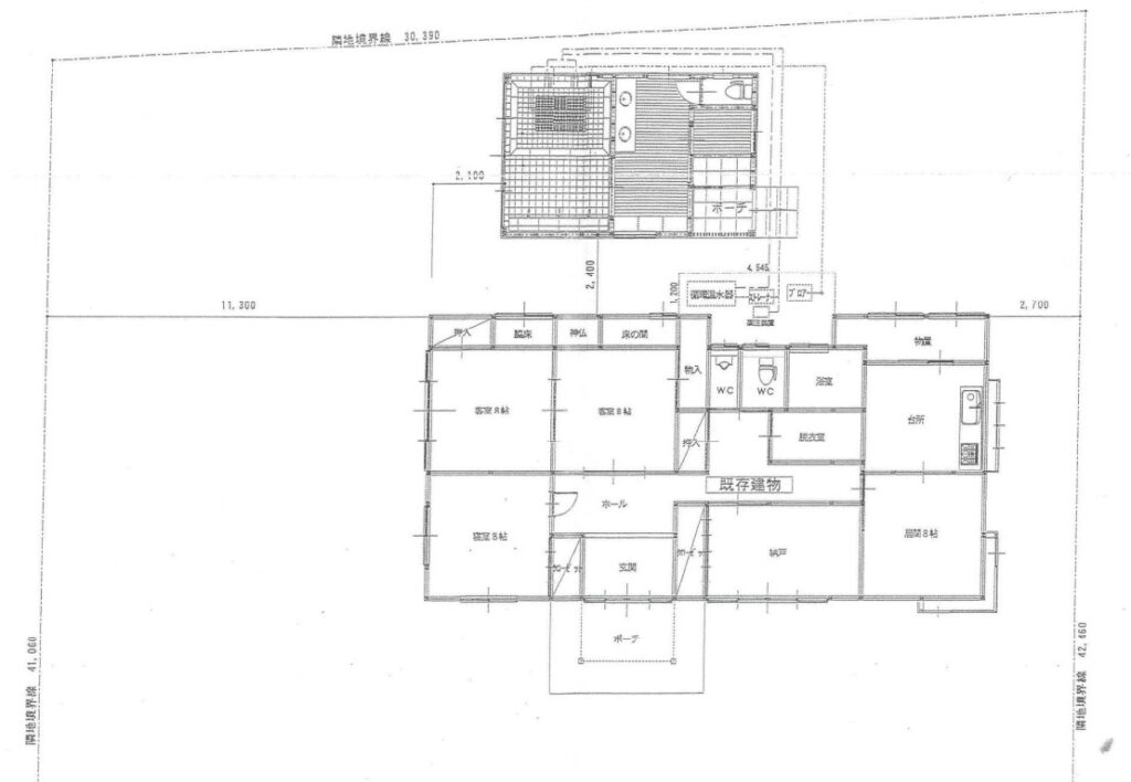
| 備考 | ■敷地内にある下記中古住宅も同時売却となります。 【種類 居宅 構造 木造かわらぶき平屋建 床面積 129.65㎡(約39.21坪) ■間取り 4K ■新築年月日 平成6年7月 |
| 土地面積 | 2334.52㎡(706.19坪) | 建物面積 | 144.58㎡(43.73坪) |
|---|---|---|---|
| 間取り | - | 階建/階 | 1階建/1階 |
| 位置・階数 | - | 築年月 | 2001年3月(築25年) |
| 建物構造 | 木造 | 駐車場 | 10台分以上 |
| 都市計画 | 市街化区域 | 用途地域 | 準工業 |
| 建ぺい率 | 60% | 容積率 | 200% |
| 土地権利 | 所有権 | 接道状況 | - |
| 地目 | 宅地 | ||
| 条件等 | - | ||
|---|---|---|---|
| 現況 | 空 | 引渡し(可能時期/方法) | 相談 |
※「-」と表示されている項目については、情報提供会社にご確認ください。
周辺情報
山形県酒田市豊里字堂脇8
地図
情報提供会社
山一不動産(株)
交通:JR羽越本線/酒田
住所:山形県酒田市こがね町2丁目1-17
TEL:0234-22-4320
FAX:0234-22-4321
所属団体など:(公社)山形県宅地建物取引業協会会員
東北地区不動産公正取引協議会加盟取引態様:
- 間取図は、現況を優先させていただきます。
- 映像は物件の一部を撮影したものです。物件の契約にあたっての最終判断はご自身の判断に基づいて行ってください。
-
仲介手数料について
?
仲介手数料とは 貸主と借主の契約の仲立ちを行う不動産会社に支払う報酬です。宅地建物取引業法等(法第46条・建設省告示第1552号他)により取引態様ごとに受け取ることのできる報酬の上限額が定められています。
取引態様が「貸主」の場合は不要です。
「仲介」の場合、居住用の物件は月額賃料の0.55ヶ月分の範囲内とされています。なお、物件によって、月額賃料の1.1ヶ月分を上限とした範囲内で必要となる場合があります。
「代理」の場合、月額賃料の1.1ヶ月分の範囲内とされています。
※宅地または居住用以外の建物で権利金がある物件に関しては、権利金の額を売買代金の額とみなして算出される場合があります。
権利金を以下のように区分し、それぞれ定められた割合を乗じて得た金額の合計額が上限となります。
(賃貸借に係る消費税額を除外した額)200万円以下の金額 5.5% 200万円を超え400万円以下の金額 4.4% 400万円を超える金額 3.3%
物件によって金額が異なります。
お問い合わせの際は十分ご確認ください。 - 消費税について
当サイトの課税対象となる物件価格およびその他費用等は、税込み表示となっております(100円未満は切上げ)。
詳しくは、当社までお問い合わせください。